Vila das Corujas

Descrição
- Sol delícia!
- 350m² privativos
- 2 suítes ou 3 quartos
- Jardim crescido
- Rooftop
- Atelier
- Sauna úmida
- 2 vagas soltas
- Paredes grossas com isolante térmico na massa
- Vidros grossos, persianas e blackout
- Ar quente e frio na casa toda
- Com marcenaria e equipada
- Monitoramento
- Sem obras. Mude já
A Vila das Corujas é um condomínio de três casas de alto padrão, implantado em frente a uma praça, a Praça das Corujas, em um contexto urbano raro e privilegiado. O projeto nasce da busca por um modo de morar mais silencioso, integrado ao verde e atento à escala do cotidiano.
Concebida a várias mãos, a Vila das Corujas destaca a atuação dos arquitetos Mariana Quinenato e Rodrigo Izecson, que conduziram o desenvolvimento do conjunto desde a concepção até a sua materialização. A colaboração entre diferentes olhares permitiu soluções arquitetônicas equilibradas, com especial atenção à implantação, à privacidade entre as casas e à relação com o espaço público.
Os interiores apresentados nas imagens são de autoria de Rodrigo Izecson, e refletem sua abordagem de projeto: espaços claros, bem proporcionados e pensados para o uso cotidiano, com atenção aos materiais, à luz natural e à sensação de acolhimento. A casa hoje disponível mantém esse cuidado em cada ambiente, reforçando a vocação do conjunto para um morar tranquilo, confortável e duradouro.
A Vila das Corujas é um condomínio de três casas de alto padrão, implantado em frente a uma praça, a Praça das Corujas, em um contexto urbano raro e privilegiado. O projeto nasce da busca por um modo de morar mais silencioso, integrado ao verde e atento à escala do cotidiano.
Concebida a várias mãos, a Vila das Corujas destaca a atuação dos arquitetos Mariana Quinenato e Rodrigo Izecson, que conduziram o desenvolvimento do conjunto desde a concepção até a sua materialização. A colaboração entre diferentes olhares permitiu soluções arquitetônicas equilibradas, com especial atenção à implantação, à privacidade entre as casas e à relação com o espaço público.
Os interiores apresentados nas imagens são de autoria de Rodrigo Izecson, e refletem sua abordagem de projeto: espaços claros, bem proporcionados e pensados para o uso cotidiano, com atenção aos materiais, à luz natural e à sensação de acolhimento. A casa hoje disponível mantém esse cuidado em cada ambiente, reforçando a vocação do conjunto para um morar tranquilo, confortável e duradouro.
entrada













estar









cozinha






primeiro pavimento











rooftop
















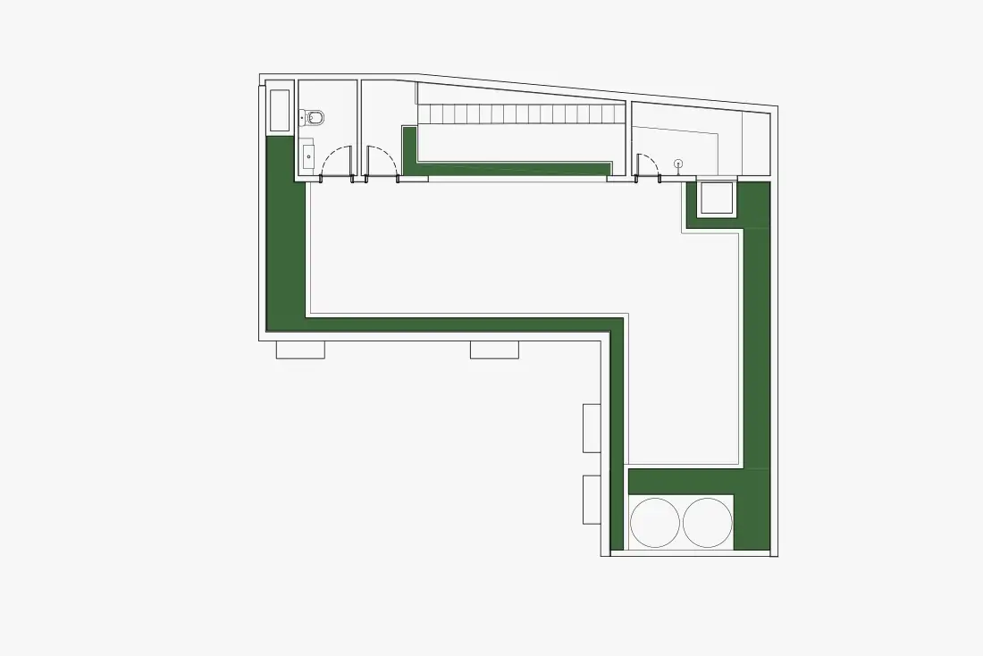
plantas
térreo

opção duas suítes (atual)

opção 3 quartos

rooftop
